Produktbeskrivning
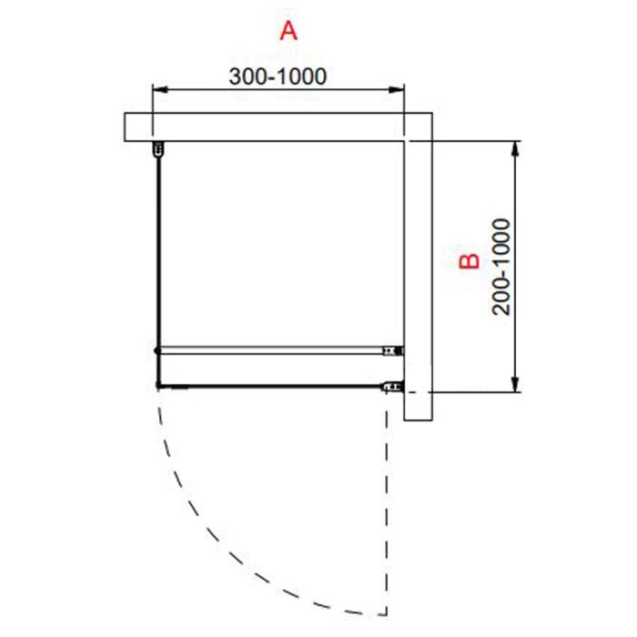
Kostnadsfri måttanpassning på höjd och bredd inom angiven intervall. A-mått (Dörr) går att få 300 -1000 mm och B-mått (Fast vägg) går att få 200-1000 mm. Standardhöjd 2000 mm ovankant profil (2010 mm ovankant stag). Modellen är vändbar. Mått avser invändigt hörn till ytterkant profil.
Grepp CIRCLE ingår som standard men du kan välja Grepp PINCH utan extra kostnad. Välj mellan glasfärgerna Klarglas, Frostat glas, Grått glas och Klarglas med Timeless och profilfärgerna Blankpolerad, Mattborstad, Mattsvart och Vit.
Vid beställning ange A-och B- mått samt höjd glas (max 2000 mm). Ange måtten i fältet "Meddelande till kundtjänst" i kassan. Möjligt att få snedkapade glas om om om konstruktion tillåter.
Denna dusch går även att kombinera med INR:s borrfria monteringskit. Monterar du denna dusch med PILE förvaringshylla, observera då att PILE bygger 100 mm vilket innebär att du ska dra av 100 mm på den sida den ska sitta för att det ska bli rätt mått efter montering. PILE kan inte måttbeställas. Så den kan endast kombineras med duschväggar i standardhöjd 2000 mm.
Observera! Detta är en tillverkningsprodukt vilket innebär att returrätt inte gäller. För frågor angående detta kontakta gärna vår kundtjänst.
